



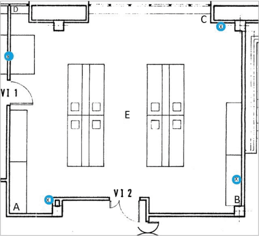
There are many systems for indoor navigation specially built for visually impaired people but only some has good accuracy for navigation. While there are solutions like global navigation satellite systems for the localization outdoors, problems arise in urban scenarios and indoors due to insufficient or failed signal reception. To build a support system for navigation for visually impaired people, in this paper we present a comparison of indoor localization and navigation system, which performs continuous and real-time processing using commercially available systems (Beacons and Decawave) under the same experimental condition for the performance analysis. Error is calculated and analyzed using Euclidean distance and standard deviation for both the cases. We used Navigine Platform for this navigation system which allows both Tri-lateration as well as Fingerprinting algorithms. For calculating location we have used the concept of Time of Arrival and time of difference of arrivals. Taking into concern about the blind people, location is important as well as accuracy is necessity because small measurement in the walk is important to them. With this concern, in this paper, we are showing the comparative study of beacons and Decawave. The study and the accuracy tests of those systems for the blind people/user's in navigating indoor are presented in this paper.